
UPDATED:
Key Details
Property Type Single Family Home
Sub Type Single Family Residence
Listing Status Active
Purchase Type For Sale
Square Footage 1,535 sqft
Price per Sqft $188
Subdivision Southgrove
MLS Listing ID 7282261
Bedrooms 3
Full Baths 2
HOA Fees $40/mo
HOA Y/N Yes
Year Built 2025
Tax Year 2024
Lot Size 7,840 Sqft
Acres 0.18
Property Sub-Type Single Family Residence
Source actris
Property Description
Photos are representative of plan and may vary as built.
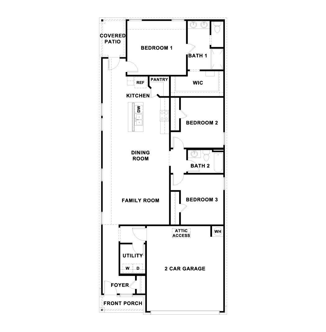
Introducing the Diana at Southgrove in Kyle, TX. This home offers 1,535 square feet of living space across 3 bedrooms, 2 bathrooms, and a 2-car garage.
As you enter the long foyer you walk into the spacious family room open to the kitchen and dining area. The kitchen features quartz or Silestone® countertops, stainless steel appliances, recessed lighting, and a kitchen island. The secondary bedrooms are located off the dining area and include carpeted floors and a closet in each. The private main bedroom, bedroom 1, is located off the kitchen and includes a huge walk-in closet and walk-in shower.
This home comes included with a professionally designed landscape package and a full irrigation system as well as our America's Smart Home® package that offers devices such as the Qolsys IQ Panel, Video Doorbell, Alarm.com app, Honeywell Thermostat, Deako Smart Light Switch, Kwikset Smart lock, and more.
Location
State TX
County Hays
Rooms
Main Level Bedrooms 3
Interior
Interior Features Granite Counters, Entrance Foyer, No Interior Steps, Pantry, Primary Bedroom on Main, Smart Thermostat, Walk-In Closet(s)
Heating Electric, Natural Gas
Cooling Central Air
Flooring Vinyl
Fireplaces Type None
Fireplace No
Appliance Dishwasher, Disposal, Gas Cooktop, Microwave, Free-Standing Range
Exterior
Exterior Feature Private Yard
Garage Spaces 2.0
Fence Fenced, Privacy, Wood
Pool None
Community Features Playground, Pool
Utilities Available Electricity Available
Waterfront Description None
View None
Roof Type Composition
Porch Covered, Patio
Total Parking Spaces 2
Private Pool No
Building
Lot Description Sprinkler - Automatic, Sprinklers In Rear, Sprinklers In Front, Trees-Small (Under 20 Ft)
Faces Northwest
Foundation Slab
Sewer Public Sewer
Water MUD
Level or Stories One
Structure Type Brick,HardiPlank Type,Masonry – Partial,Stone
New Construction Yes
Schools
Elementary Schools Camino Real
Middle Schools Mccormick
High Schools Johnson High School
School District Haysconsisd
Others
HOA Fee Include Common Area Maintenance
Special Listing Condition Standard
Virtual Tour https://my.matterport.com/show/?m=a6rqthCqgsh
GET MORE INFORMATION

Mack Linan
Broker Associate | License ID: 525929
Broker Associate License ID: 525929
- Homes for Sale in Austin
- Homes for Sale in Leander
- Homes for Sale in Liberty Hill
- Homes for Sale in Georgetown
- Homes for Sale in Hutto
- Homes for Sale in Lago Vista
- Homes for Sale in Pflugerville
- Homes for Sale in Round Rock
- Homes for Sale in Westlake
- Homes for Sale in Kyle
- Homes for Sale in Buda
- Homes for Sale in Bee Cave
- Homes for Sale in Driftwood
- Homes for Sale in Jonestown
- Homes for Sale in Lakeway
- Homes for Sale in Cedar Park
- Homes with a Pool
- Luxury Home Search
- Land for Sale




